• materialtech_1
  • materialtech_2
  • materialtech_3
1 2 3
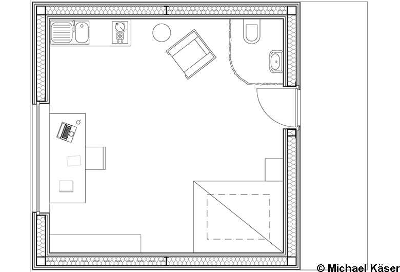
Einzimmerhaus, Fogo Island

Im Herbstsemester 2012 bestand die Aufgabe im Modul Materialtechnoligie darin ein bestehendes Gebäude neu zu planen. Dies war mit der Auflage verbunden sich auf ein Material zu fokusieren und erst dann auf andere Materialien auszuweichen, wenn das Gewählte den Anforderungen nicht mehr gerecht wurde. Entstanden ist ein Haus aus GFK (Glasfaserverstärkter Kunststoff), bei welchem die Aussenhaut aus verschweissten Corian-Platten besteht.